Продается 2-к квартира Омск, Комарова пр-кт 15
Коротко
- Номер объявления
- 31278623
- Дата подачи
- 16.02.2026
- Комнат
- 2
- Обновленно
- 20.04.2026
- Тип
- Квартиры
- Улица
- Комарова пр-кт
- Номер дома
- 15
- Вариант
- продажа
- Этаж
- 8
- Этажность
- 14
- Материал стен
- кирпично-монолитный
- Балкон
- Балкон
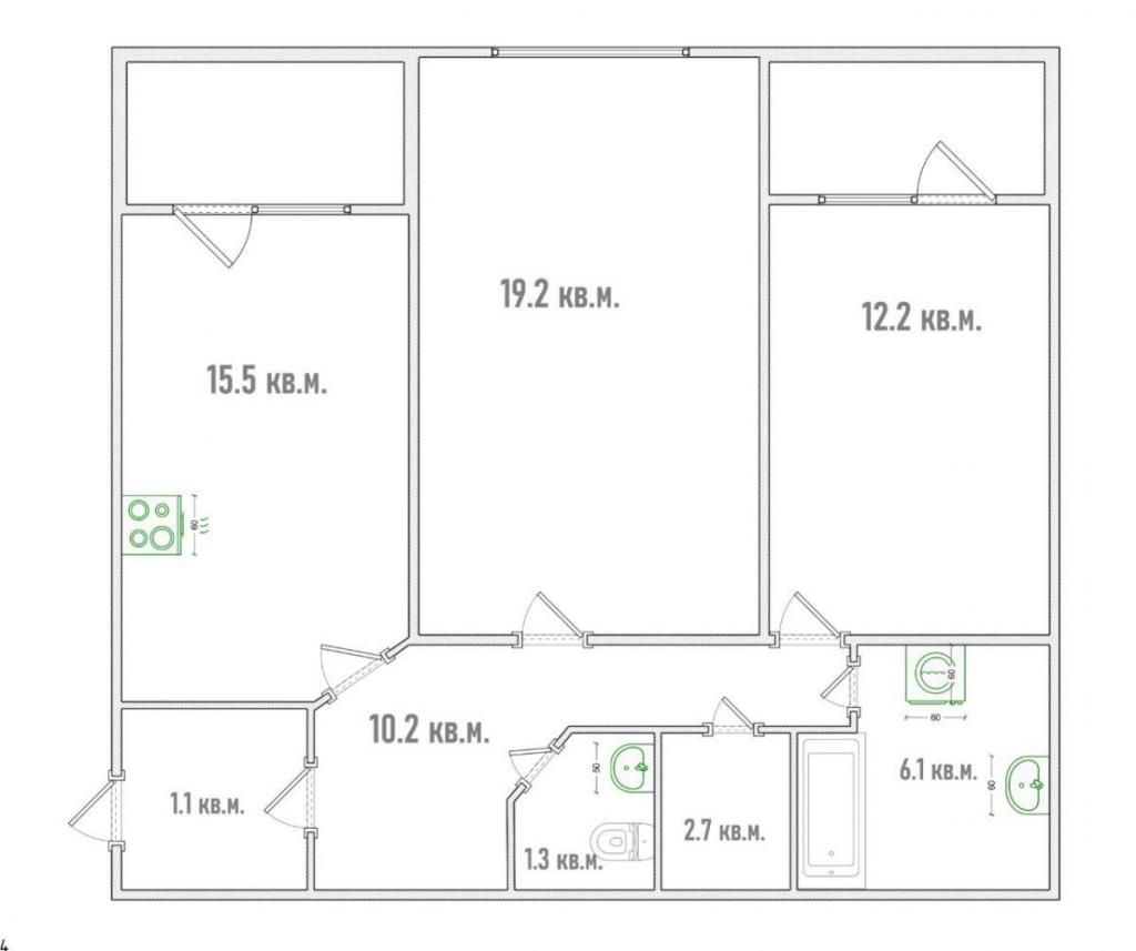
- Площадь общая
- 70.5
- Площадь жилая
- 31.4
- Площадь кухни
- 15
- Сан. узел
- Раздельный
- Год постройки
- 2006
- Цена
- 9 700 000 руб.
- Просмотров
- 24
Контакты

0
- Агент:
- Антонина
- Телефон:
- +79503380505
Остерегайтесь мошенников! Не вносите предоплату за услуги риелторов до личного посещения и осмотра объекта недвижимости!
Описание
Предлагаем вашему вниманию просторную ,уютную 2 х комнатную квартиру 70.5 м2 с удобной планировкой, в новом современном микрорайоне Кристалл от Центра Недвижимости и Ипотеки «ТандемТ». На 8-м этаже в 14 - этажном монолитно-кирпичном доме с шикарным видом из окна.
Квартира очень теплая, сделан отличный ремонт из экологически чистых материалов, большая кухня - гостиная 15 м², две изолированные комнаты 12 м2 и 19 м2 , высокие потолки .
Просторная прихожая и вместительная гардеробная, межкомнатные двери - натуральный массив сосны ,окна ПВХ, алюминиевые радиаторы отопления. На полу во всех комнатах ламинат, в прихожей и санузле - плитка KERAMA MARAZZI, сан узел раздельный , в просторной ванной комнате установлен водонагреватель, две лоджии позволят наслаждаться свежим воздухом и прекрасными видами в любое время года - застеклены и утеплены.
Новым собственникам остается кухонный гарнитур IKEA, со встроенной техникой ( варочная панель, духовой шкаф, вытяжка) , водонагреватель и диван.
Современный дом ,построенный в 2006 году, гарантирует тепло, тишину и комфорт. У дома своё ТСЖ, пассажирский и грузовой лифты, во дворе достаточное количество парковочных мест. Дружелюбные соседи, ухоженный двор с новой детской площадкой.
Инфраструктура района развитая: торговый центр, парк и фитнес-клуб, школы, детские сады, магазины – все в шаговой доступности!
Хорошая транспортная доступность позволяет быстро добраться до любой точки города.
Документы готовы ,чистая продажа, 1 собственник. Не упустите свой шанс! Позвоните нам уже сегодня и оцените все преимущества своей новой квартиры. Просто заходите и живите с первого дня.
Мы принимаем на реализацию вашу недвижимость, если вы ещё не продали свою квартиру!
Условия сделки:
Просмотр по договоренности в любое удобное для вас время.
Возможна ипотека на выгодных для вас условиях.
Гарантируем безопасное и комфортное сопровождение сделки.
Профессиональная ответственность АН застрахована на 5 мил. рублей !
Номер объекта: #31/537702/24613
Цена 9 700 000 руб. /137 589 за м2
Если вы позвонили по объявлению и выяснили, что объекта не существует, либо с вас требуют предоплату за просмотр, оставьте жалобу!
Дополнительно
2-комн. Квартиры, Омск, Цена до 10 670 000, от 63 м2




Социальные кнопки